Bán Biệt thự vườn Senturia An Phú, P.An Phú, TP Thủ Đức (Quận 2 Cũ), HCM

Địa Chỉ: Mặt tiền đường Song Hành Cao tốc Long Thành - Dầu Giây, Phường An Phú, TP Thủ Đức, HCM

Diện Tích: 200

YÊU CẦU GỌI LẠI TƯ VẤN





    Bán Biệt thự Senturia An Phú, Phường An Phú, TP Thủ Đức (Quận 2 Cũ), HCM. Thuộc khu dân cư Senturia An Phú, có vị trí vô cùng đắc địa khi tọa lạc tại mặt tiền đường song hành Cao tốc Long Thành – Dầu Giây, Phường An Phú, TP Thủ Đức(Quận 2 cũ), TP Hồ Chí Minh.

    senturia an phu Biet thu song lap

     

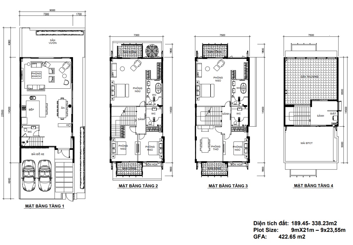
    Thiết kế Biệt thự Senturia An Phú

    • Diện tích: 9 x 23 = 189,45 ~ 338,23 m2
    • Loại hình: Biệt thự Song Lập
    • Số tầng 4 tầng: 
      • Số tầng 4 tầng trệt, lầu 1, lầu 2, sân thượng
      • Phòng ngủ 5 phòng
      • Phòng vệ sinh 5 phòng
      • Phòng thờ 1 phòng
      • Garage Xe máy 2 chiếc Xe hơi 2 chiếc
      • Sân vườn: 82.15 ~ 230 m2 trước + sau + bên (nếu có)
      • Khoảng lùi trước 3.75 ~ 5.0 m
      • Khoảng lùi sau 2.8 ~ 7.0 M

    thiet ke biet thu vuon Senturia an phu

    Đặc điểm nổi bật Biệt thự Senturia An Phú:

    Hiện tại khu vực, cũng như tại TP HCM hiếm có khu nhà ở thấp tầng nào mà được xây dựng thông thoáng như khu Senturia An Phú, bởi các yếu tố thiết kế sau:

    senturia an phu 5

     

    1. Nhà có bề Ngang 9m x 21 – 13m = 189,45 ~ 338,23 m2: Rất thông thoáng.
    2. Phía sau có khoảng sân vườn rộng từ 82.15 ~ 230 m2: Rất thoáng và rộng rãi. ( Ít nơi có)
    3. Phía sau là giáp với công viên, hồ bơi = Rất đẹp, mát, yên 
    4. Mỗi căn nhà phố đề có 1 sân thượng rộng rãi, có thể dùng làm thêm sân vườn, trồng cây, nuôi chim cảnh…
    5. Được thiết kế bới Đơn vị thiết kế cảnh quan và thiết kế nội thất: Ong&Ong nổi tiếng đến từ Singapore vì vậy mỗi căn nhà rất gần giủ với thiên nhiên như là khu nghỉ dưỡng cao cấp.

    Giới thiệu cơ bản về khu dân cư Senturia An Phú

    senturia an phu 3 1

    • Tên thương mại: SENTURIA  AN PHÚ
    • Chủ đầu tư: Công ty Cổ Phần Bất Động Sản Tiến Phước
    • Địa chỉ: Mặt tiền đường Song Hành, Phường An Phú, Quận 2, TP Hồ Chí Minh.
    • Đơn vị thiết kế cảnh quan và thiết kế nội thất: Ong&Ong ( Nổi tiếng đến từ Singapore)
    • Đơn vị thiết kế ý tưởng: Alinco
    • Tư vấn thiết kế ý tường: FDIT
    • Đơn vị giám sát dự án: Apave
    • Đơn vị dịch vụ quản lý dự án: Savills/PMC
    • Đơn vị phân phối trực tiếp, F1 ERA Việt Nam ( Nổi tiếng đến từ Mỹ, Singapore và có mặt hơn 34 quốc gia)
    • Quy mô dự án: 8,5 ha
    • 355 căn, bao gồm: 202 nhà phố – 91 shophouse – 62 biệt thự song lập

    Liên hệ tư vấn: 

    0914 438 509 – Khánh Thư (Mrs)

    QR Van Ly

    HotlineZalo Chat